CAEx Uzbekistan

Eine einzigartige und multifunktionale Business-Arena, mit der Sie den Pavillon an jedes Projekt und jedes Format anpassen können

Ausstellungs komplex

Das internationale Ausstellungszentrum Central Asian Expo Uzbekistan ist einer der größten und modernsten Ausstellungsorte in Zentralasien und Mitglied der Global Association of the Exhibition Industry UFI. Die Mitgliedschaft in der International Association of Exhibitions and Events (IAEE) ist ein Qualitätssiegel dafür, dass das Niveau der von CAEx angebotenen Dienstleistungen internationalen Standards entspricht.

  • 23,000 м2 Durchgeführte Ausstellungen

  • 4 Nutzbarer Raum

  • 18,000 м2 Teilnehmer aus anderen Ländern
  • 1500 + 15 VIP Parken

  • 3 000/м2 Zulässige Bodenbelastung

Unsere Mission

Die Mission des CAEx-Ausstellungszentrums Usbekistan besteht darin, eine innovative und inspirierende Plattform zu schaffen, um Menschen, Ideen und Technologien zusammenzubringen. Wir streben danach, Zentralasiens führendes Zentrum zu werden, wo kreative und kreative Gemeinschaften zusammenkommen, um Vielfalt in Kunst, Kultur, Wissenschaft und Wirtschaft zu unterstützen.

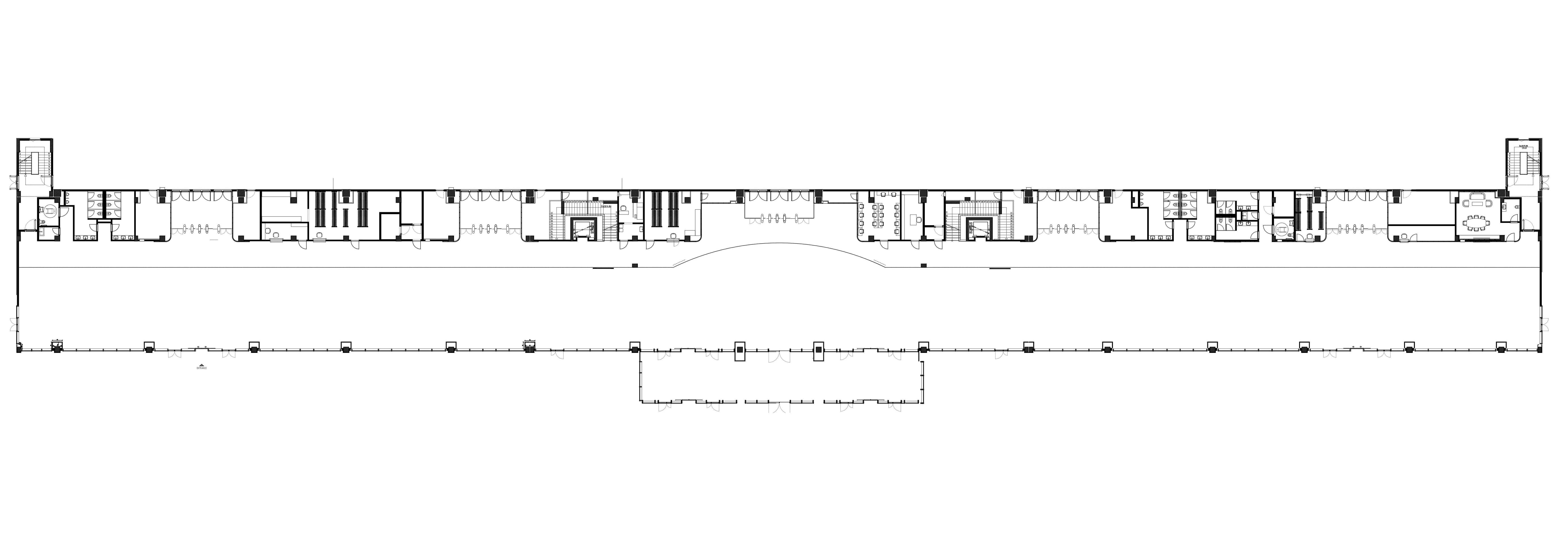
Gebäudeplan

home map
home map

Unsere Partner

  • Partner
  • Partner